공사 착공 전 비산먼지 발생사업 신고와 특정공사 사전신고를 하지 않으면 공사장 인근 주민들의 민원으로 인해 관할 시군구청에 민원이 들어가게 되고 신고가 되지 않는 사업장의 경우 과태료처분 등의 행정 처분을 받을 수 있어요.
그래서 이번 포스팅에서는 건설공사를 진행함에 있어 착공 전 반드시 진행되어야할 비산먼지 발생 신고 절차를 안내해 드리고 양식을 공유해 보는 글은 작성해 보겠습니다.

비산먼지란?
비산먼지란 건설 현장에서 발생하여 바람의 이동에 따라 주변으로 퍼지며 주변환경과 인근 주민들의 건강에 악영향을 미칠 수 있기 때문에 정부는 대기환경보전법으로 까다롭게 관리하고 있습니다.
비산먼지 발생 신고 대상 기준
- 토목공사 : 연면적 1,000㎡ 이상
- 건축공사 : 연면적 1,000㎡ 이상
- 토사(흙) 적재, 야적 작업 : 1일 50㎡ 이상 또는 총 300㎡ 이상
- 철거공사 : 연멱적 1,000㎡ 이상
- 골재 야적, 운반, 적재 공사 : 총량 1,000㎡ 이상
비산먼지 발생 신고 절차
1. 신고서 작성 : 비산먼지 발생사업 신고서를 작성하고 관련 서류를 첨부합니다.
신고서 작성 중 비산먼지 발생 억제를 위해 설치할 시설과 조치 사항을 기재하게 되어있는데 이 부분이 미흡할 경우 보완요청으로 신고필증을 받는 기간이 오래 걸리 수 있어요. 처음 신청할 때 꼼꼼히 완벽하게 신고서를 제출하는게 필증을 빨리 받을 수 있는 방법입니다.
비산먼지 발생 신고서를 제출할 때 대부분 특정공사 사전신고를 같이하게 됩니다. 위에 양식을 올려두었으니 필요하시면 다운로드해서 사용하시면 되겠습니다.
2. 관할 기관 제출 : 공사가 진행될 지역의 시, 군, 구청 환경부서에 제출합니다.
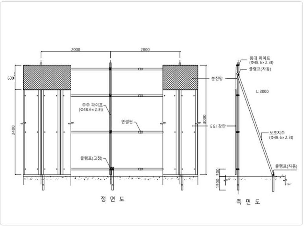
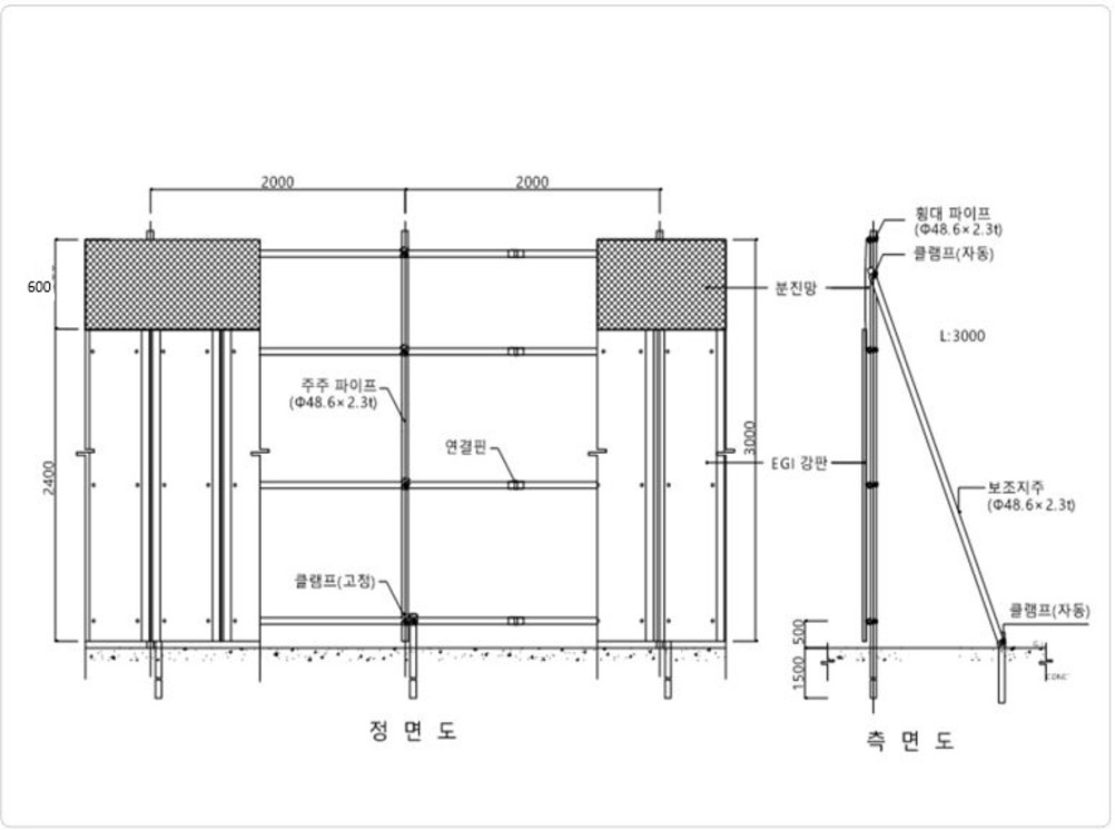
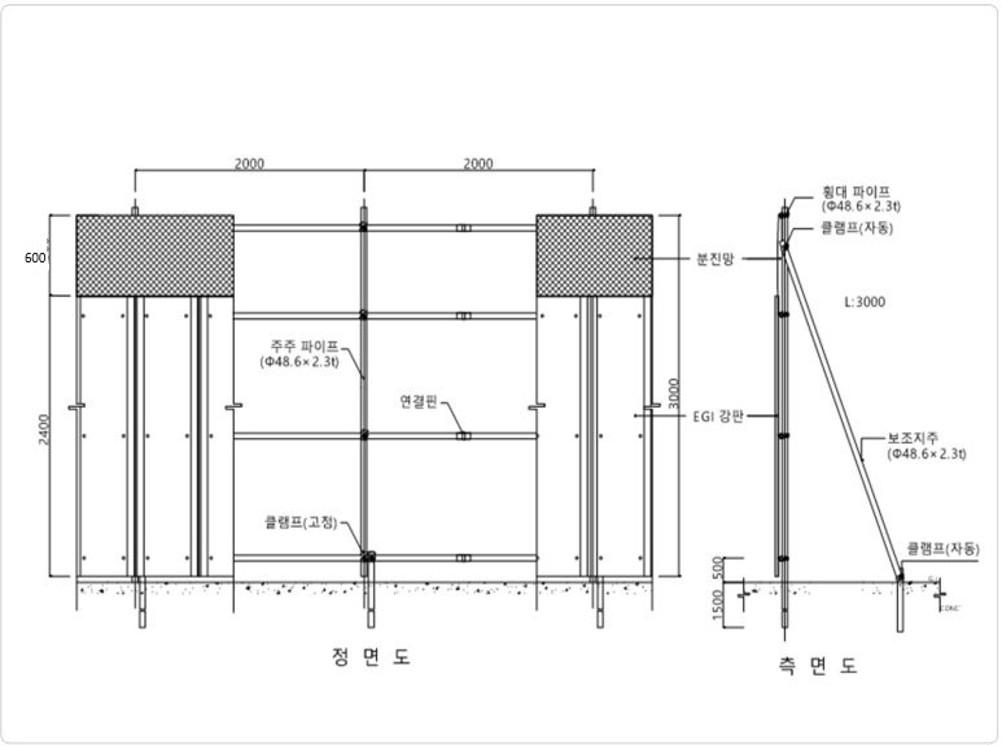
3. 비산먼지 억제 계획 포함 : 공사 중 비산먼지를 줄이기 위한 대책(살수, 방진막 설치 등)을 포함해야합니다.
4. 승인 후 공사 진행 : 신고가 승인된 후 공사를 진행해야 하며, 신고 없이 공사할 경우 과태료가 부과 될 수 있습니다.
미신고 시 불이익
1차 위반 : 과태료 200만원
2차 위반 : 과태료 400만원
3차 위반 : 관태료 600만원
결론
건설공사를 진행할 계획이라면 반드시 관할 기관에 신고 후 적절한 비산먼지 저감 조치를 하고 진행하는 것이 중요합니다. 공사 진행 중 불이익이 없도록 착공 전 잊어버리지 말고 꼭 신고하시길 바라며, 비산먼지 발생사업 등 신고를 알아보시는 분들께 도움이 되는 정보가 되었으면 좋겠습니다. 감사합니다.